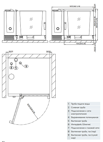
Пароконвектоматы RATIONAL — 6 уровней
Фильтры
Фильтры
По популярности
RATIONAL 6 уровней (GN 1/1) — компактное решение для профессиональных кухонь с высокой скоростью обслуживания. В категории представлены модели iCombi Pro и iCombi Classic в электрическом и газовом исполнении. Оптимальны для ресторанов, кафе, пекарен и кейтеринга: стабильное качество, экономия ресурсов и удобное обслуживание.
- Производительность: до 6 гастроемкостей GN 1/1
- Режимы: конвекция, пар, комбинированный
- Опции: iCareSystem (самоочистка), ConnectedCooking, Marine/HeavyDuty
- Подключение: электричество или природный/сжиженный газ








































